在城市繁华深处,
选择一处栖心之所,
卓越御湖湾便是不二之选。
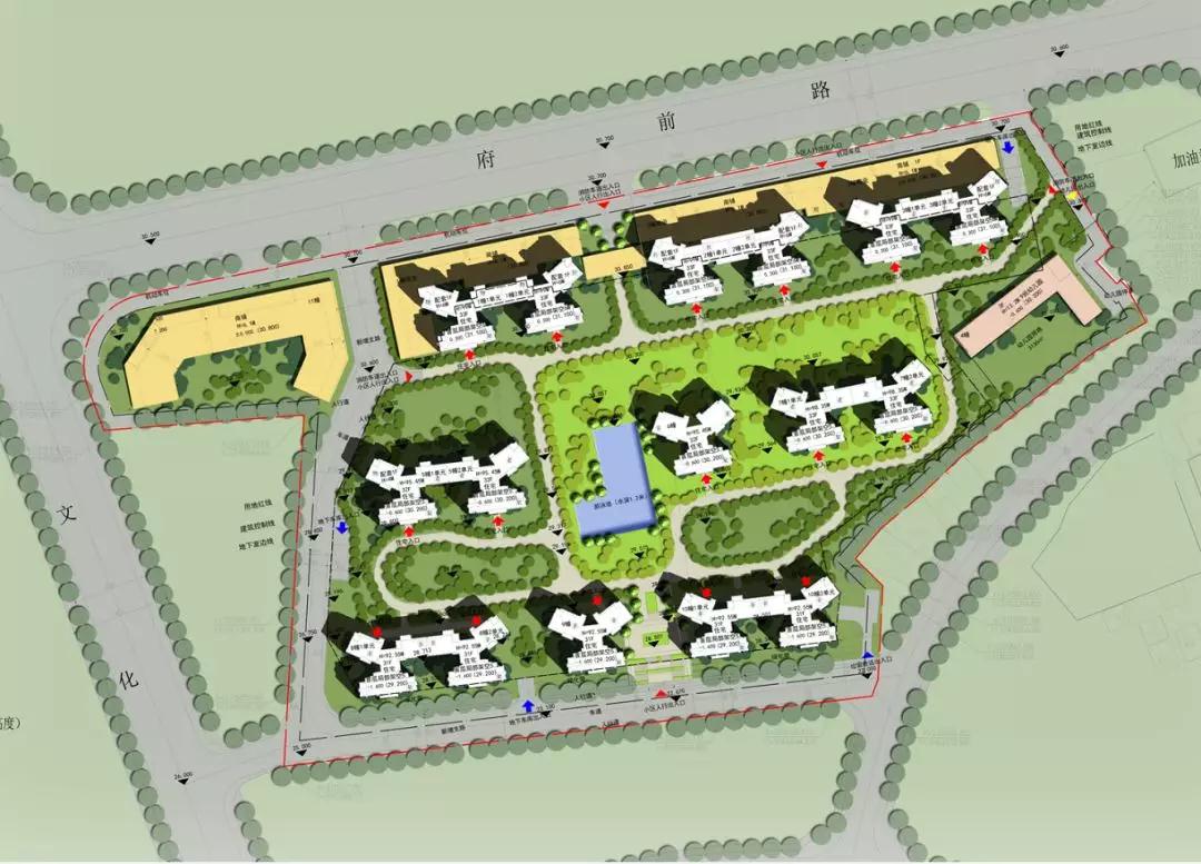
位于雷州市文化路中央商务区C地块的卓越御湖湾,北邻新建市民公园及府前路,东邻加油站,西邻茂德公古城,南邻水库。这里视野开阔,风景优美宜人,寄托着人们对幸福安居的期许。

项目注重与周边环境的有机衔接,以城市为出发点进行规划设计。在环境设计方面强调自然生态景观的塑造,注重“宜居”“人文”的价值品质,更是强调人与自然的和谐,使居住于此的人充分享受到城市中的自然风光。

在小区绿化景观设计中,团队致力于创造一个“宜居”“生态”的居住环境。在沿街绿化,集中绿化、生态广场等,通过铺地、植被等小品组合,融入亚热带地区的环境风格和浪漫的园林风情,营造出丰富的空间层次和通透的景观视廊,给人以清新自然的空间感受。生态广场配合周边环境通过小品建筑、花坛等组合,丰富的小区景观,更深层的体现小区的“宜居”之意。景观设计强调城市景观和社区人文景观的互动,视线及空间的通透,景观的可达性和亲近性。

项目依据建设用地红线,设计团队对周边环境现状进行综合分析,在有限的用地内合理组织内外部空间,极力创造舒适宜人的生活环境,满足人们的生理需要及社会不同家庭生活模式的需求。
团队关注可持续发展,以城市设计为前提,通过分析南方城市的特点,利用现代设计理念,高科技、工艺和材料,充分考虑生态、节能、环保等可持续发展的设计理念,创造地方特色,力求打造出具有鲜明时代特点的面向未来的居住环境及建筑新形象。

为深入贯彻“以人为本”的设计理念,体现新时尚、新住宅的概念。设计团队引进先进的环境设计理念,落实“人、建筑、环境”三要素的密切关系,创造灵活的建筑空间。同时重视建筑设计文化内涵,使人文精神从户型设计、室内设计、空间设计、社区环境等全方位融入建筑,突出富有人性化的空间理念和重亲情的空间感受。


房子,能容纳对美好生活的向往。真正经得起考验的房子,能承载长达一辈子的幸福。雷州新典范,卓筑人居标杆。卓越御湖湾项目的建成更能提升周边居住质量,美化此地的空间环境。
项目名称:卓越御湖湾
项目位置:雷州市雷城镇广海北、207国道西侧
用地面积:73041.14平方米
建筑面积:337304.34平方米
发 展 商:雷州市鑫悦房地产开发有限公司
设计团队:
梁志标、周宜同、张小旦、谭丹萍、
谢锦婷、余艳发、林晓伟、陈文交、
陈仁雄、张斯仪、黄土泉、冼真强


+86(20) -6661 1999
广州市番禺区钟村街长华创意谷E区19栋












