乡村式的住房优点在于周边绿化环境优美、空气清新;人均居住用地面积大,有充足的活动空间;人口密度低,车辆往来少,相比与城市的喧闹吵杂,生活私密性较强。
于是,大隐隐于市的乡村式住宅就成了最难得的闹市中的桃花源。
近期,乐动手机网页版登录入口_乐动(中国)集团参与打造设计的湛江硕基一品花园正是这种尊贵珍稀的居住名片。
湛江硕基一品花园位于湛江市乐山路以南、银帆路以东、人民大道以西,泉庄路以北,用地西侧与北侧紧邻银帆公园。
银帆公园作为改善湛江城市生态环境和居住环境的重要节点,正是湛江硕基一品花园项目打造成为银帆片区的高端、时尚、生态、引领潮流居住区,塑造银帆片区的居住标杆形象的关键依据。

小区绿化的健康意义远大于观赏价值,绿植通过光合作用进一步净化空气,病毒细菌不容易存活,即使在家“抗疫”也能呼吸到新鲜的空气。
面朝银帆公园,拥抱绿肺
该项目尊重自然,保护公园生态,充分利用场地的地形高差,形成北低南高的规划布局形态。
高层建筑布置于南侧,拉远与银帆公园的距离,保护生态。北侧为2层低层住宅,通过规划退让,将公园景观引入社区,使社区中心景观与公园景观连为一体,让每户都拥有良好的通风采光及开阔的视野,并尽可能让更多住户可看到公园的园林景观,打造绿色可餐的生态型都市居住区的标杆。

谁说闲逸潇洒的生活一定要到乡村的林泉野径才能体会得到?更高层次的隐逸生活是在都市繁华之中,寻求那一份宁静。硕基一品花园的园林打造便是遵循这一思路,让人在疫情期间,可在此找到心灵的净土,得到更多的享乐空间!
小隐隐于野,大隐隐于市
在环境设计方面,强调银帆公园的生态作用。不仅着重自然生态景观的塑造,还注重“宜居”“人文”的价值品质,强调人与自然的和谐,使居住于此的人充分享受到城市中的自然风光,于都市中享得闲逸之情趣。

一个良好的居住环境不止是图纸上的画画,后期的人性化管理对生活品质也会产生直接的影响。湛江位于亚热带沿海地区,台风、暴雨季节多,容易导致城市的内涝。如若不迅速排水则容易积水引起蚊虫,病毒细菌的传染就变得尤为普遍。
人性化设计,让居住环境更舒心
项目引进海绵城市、生态循环城市、脚印城市三大设计理念,优化水环境,实现水资源的自然积存、自然渗透、自然净化;保护生态环境,强化节能减排;建立优化城市微循环系统,打造生态型的活力示范社区。

此次疫情,香港淘大花园再被提及,足不出门也可能引起感染。保持室内通风、注意地漏“水封”、加强排风设施等居家防疫的专业建议被广泛传播。同时,在人们枯燥乏味的居家日子里,“居家一日游”抖音视频走红朋友圈。这时候,拥有一个安全性、舒适性与健康性的房子就显得尤为重要。
南北通透的优质户型,自然采光通风
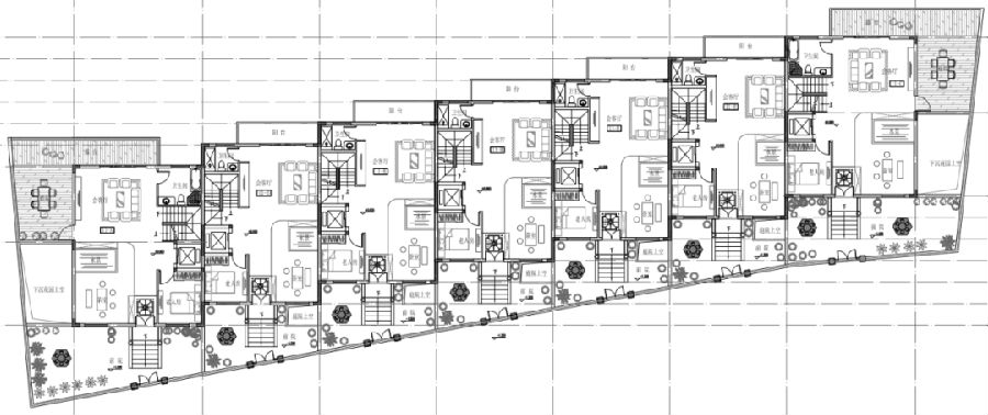
本小区高层住宅工字型设计,均为2梯四户,有两至五户的多种户型选择,每户每间房都有自然采光通风,干湿分区明显。
大户型设观景阳台,把客厅一直延伸出去,让银帆公园和小区内的优美景观尽收眼底。在不出门的时光里,是否也向往到户外大口地呼吸新鲜空气?足不出户还能满足这样的需求,非此一方阔景阳台不可!
北侧为6排联排式的2层类别墅区,由于地势坡度的原因,每户拥有下沉庭院阳光车库。户型南北对流且大部分户型多阳台设计,花园式空间。无论清晨抑或午后,一杯咖啡,一本书,聆听鸟语花香,足以慰风尘!
在寸土寸金的城市,拥有院子的低层住宅已成为一种稀缺性产品。湛江硕基一品花园的高层作为住宅+类别墅的高端、时尚、生态产品,不仅坐拥绝佳的市中心资源,还有乡村式的生态环境,将成为引领城市优质居住空间提升的方向标。


+86(20) -6661 1999
广州市番禺区钟村街长华创意谷E区19栋












